Solutions

GDG Automation Solutions

We offer you automation solutions with a systemic process approach, so you can have not only a device, but a tool that optimizes and continuously meets your needs.
As part of our services, we can offer you:

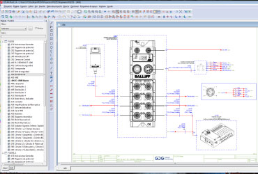
All our projects are developed with CAD software, 3D and 2D drawings are the base of our engineering.

Electric diagrams and 3D enclosure design are developed for our controls department.
Pneumatic and Hydraulic design, also, simulation software is applied.
All our projects are managed by Projects Engineers. A Gantt chart and weekly reports are sent to our customers.
Machine user manual and additional documentation is delivered to our customers. Training for production and maintenance operators are included.
After sales technical support for your maintenance department, with the project code we can provide information or backup
If you need maintenance service for the machine built by GDG, yo can ask for a quotation.
We can program some of the most common PLC’s, many industrial communication protocols can be supported.
HMI design is one of our specialties, trends, animations and data acquisition systems could be implemented.
Start up of special equipment such as, welding, leak tester, vision systems, robots, servomotors, measurement systems, load cells and others.
If you need mechanic or electric assembly personel you can ask for a quotation.

“Creating solutions that meet our customers requirements”